บริการจากเอสซีจี ไฮม์
แบบบ้าน 3 ชั้น สำหรับครอบครัวใหญ่
: เรื่อง: SCG HEIM
บ้านสามชั้นอีกหนึ่งตัวเลือกยอดนิยมสำหรับครอบครัวใหญ่ โดยเฉพาะสร้างบ้านในเมือง ที่ดินมีมูลค่าสูงและมีขนาดไม่ใหญ่มาก บ้านสามชั้นเหมาะสำหรับครอบครัวใหญ่ที่ต้องการสร้างบ้านที่มีพื้นที่ใช้สอยเพียงพอกับทุกสมาชิกภายในบ้าน ใช้พื้นที่ทุกตารางนิ้วอย่างคุ้มค่าได้ แบบบ้านมาพร้อมฟังก์ชันการใช้งานที่ครบครันตอบโจทย์การใช้งานของสมาชิกทุกคนและทุกวัยในครอบครัว แยกพื้นที่การใช้งานชัดเจนเพื่อการอยู่อาศัยที่มีคุณภาพของสมาชิกทุกคนในระยะยาว
ไอเดียแบ่งพื้นที่ใช้สอยภายในบ้าน 3 ชั้น
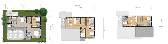
ชั้นที่หนึ่ง
โดยทั่วไปบริเวณชั้นที่ 1 ของบ้านจะถูกออกแบบไว้สำหรับเป็นพื้นที่ส่วนกลาง พื้นที่สำหรับต้อนรับแขก ห้องน้ำแขก พื้นที่ประกอบอาหารหรือห้องครัว พื้นที่รับประทานอาหาร พื้นที่นั่งเล่น ห้องออกกำลัยกาย พื้นที่สำหรับสัตว์เลื้ยง ห้องสำหรับผู้สูงอายุ พื้นที่ซักล้างหรือทำความสะอาด ห้องเก็บของ ไปจนถึงห้องพักของผู้ดูแลบ้าน เพื่อความเป็นสัดส่วน
ชั้นที่สอง
ชั้นสองขึ้นไปมักออกแบบฟังก์ชั่นให้เป็นพื้นที่ส่วนตัวสำหรับสมาชิกในครอบครัว เช่น พื้นที่ห้องนั่งเล่นหรือ Family Area พื้นที่ห้องอเนกประสงค์ตามความชอบและความสนใจของสมาชิกในบ้าน ห้องดูหนังฟังเพลง ห้องหรือพื้นที่อ่านหนังสือ ห้องทำงาน พื้นที่รับประทานอาหาร พื้นที่บาร์เครื่องดื่ม ห้องนอนอาจจะมีมากกว่า 1 ห้อง เป็นต้น
ชั้นสาม
ส่วนชั้นบนสุดของบ้านโดยส่วนใหญ่มักเป็นพื้นที่สำหรับห้องนอนใหญ่เต็มพื้นที่ หรือถ้ามีพื้นที่มากพออาจมีห้องนอนเล็กของสมาชิกหลักภายในบ้านและห้องพระ บางกรณีที่บางครอบครัวต้องการแบ่งสัดส่วนการใช้งานที่ชัดเจนยิ่งขึ้น ความเป็นส่วนตัวที่มากขึ้น ชั้นสามจะถูกออกแบบให้เป็นเสมือนชั้น Penhouse ของบ้านในกรณีที่บ้านหนึ่งหลังอาศัยอยู่มากกว่า 1 ครอบครัว เป็นต้น
แบบบ้านสามชั้นสำหรับครอบครัวใหญ่ โดย เอสซีจี ไฮม์
1. แบบบ้านสามชั้น 4 ห้องนอน 6 ห้องน้ำ

แบบบ้าน ULTIMATE 4-1 A3 แบบบ้านสวยโดดเด่นด้วยดีไซน์เฉพาะตัว ละเอียดอ่อนทุกขั้นตอน หมดปัญหาเรื่องการดูแล เอสซีจี ไฮม์ (SCG HEIM) วัสดุคุณภาพสูงสำหรับทุกส่วนของบ้าน ในพื้นที่ใช้สอย 379.5 ตร.ม. ถูกจัดสรรและออกแบบให้เป็นสัดส่วนอย่างครบครัน บนขนาดที่ดินเพียง 128.90 ตร.ว. ชั้นหนึ่ง ฟังก์ชั่นครบครัน ทั้งห้องนั่งเล่น ห้องรับแขก ห้องน้ำแขก ห้องรับประทานอาหาร ห้องครัว ห้องนอนผู้สูงอายุและห้องน้ำในตัว ชั้นสองมาพร้อม ห้องนอนใหญ่ ห้องนั่งเล่นและพื้นที่อเนกประสงค์ และห้องพระ พื้นที่ชั้นสามมี 2 ห้องนอนพร้อมห้องน้ำในตัว และห้องทำงาน ราคาเริ่มต้น 11 ล้านบาท
2.แบบบ้านสามชั้น 5 ห้องนอน 7 ห้องน้ำ

แบบบ้าน ULTIMATE 4-1 B3 แบบบ้านโมเดิร์นตอบทุกความต้องการในการใช้งาน ด้วยพื้นที่ใช้สอยที่ถูกจัดสรรและออกแบบให้เป็นสัดส่วนอย่างครบครัน ปลอดภัยสูงสุด ชั้นหนึ่ง ประกอบด้วย ห้องรับแขกพร้อมห้องน้ำ ห้องนั่งเล่น ห้องรับประทานอาหาร ห้องครัว พร้อมห้องนอนผู้สูงอายุหรือห้องอเนกประสงค์และห้องน้ำในตัว ชั้นสองมาพร้อม 1 ห้องนอนใหญ่ 1 ห้องนอนเล็กมีห้องน้ำในตัว ชั้นสามมี 2 ห้องนอนเล็ก และห้องทำงานพร้อมห้องน้ำในตัว บนพื้นที่ดินเพียง 166.10 ตร.ว. ได้พื้นที่ใช้สอยสูงถึง 422.70 ตร.ม. ราคาเริ่มต้น 11 ล้านบาท
3.แบบบ้านสามชั้น 6 ห้องนอน 7 ห้องน้ำ

แบบบ้านสามชั้น ULTIMATE 7-5 A3 บ้านหลังใหญ่สไตล์นีโอคลาสสิก โดดเด่นด้วยการออกแบบโถงทางเข้าขนาดใหญ่ ภายนอกบ้านเลือกใช้สีที่ดูอบอุ่น สบายตา ภายในบ้านจัดวางพื้นที่อย่างเป็นสัดส่วน ครบทุกความต้องการของสมาชิกในครอบครัว พื้นที่ใช้สอยกว่า 729.90 ตร.ม. บนขนาดที่ดินเพียง 390.40 ตร.ว. จอดรถได้สูงถึง 6 คัน บริเวณชั้นหนึ่งมาพร้อมโถงทางเข้าห้องรับแขกที่โอ่งอ่า ห้องนั่งเล่นแยกเป็นสัดส่วนชัดเจน มีห้องนอนผู้สูงอายุพร้อมห้องน้ำในตัว ห้องครัว และห้องรับประทานอาหารและพื้นที่สำหรับผู้ดูแลบ้าน พื้นที่ทำความสะอาด ชั้นสองมีห้องนอนใหญ่ 1 ห้อง และห้องนอนเล็ก พร้อมห้องเอเนกประสงค์ขนาดใหญ่อีกหนึ่งห้อง ชั้นสามมีห้องนอนพร้อมห้องน้ำในตัวอีก 3 ห้องนอน และห้องอเนกประสงค์อีก 1 ห้อง ในราคาเริ่มต้น 11 ล้านบาท
สร้างบ้านสามชั้นคุณภาพมาตรฐาน
เอสซีจี ไฮม์ (SCG HEIM) บริษัทรับสร้างบ้าน เราให้บริการสร้างบ้านทุกรูปแบบ ตอบโจทย์ทุกความต้องการของลูกค้าตั้งแต่ขั้นตอนวางแผนก่อสร้างบ้าน ไปจนจบส่งมอบบ้าน ดูแลตลอดอายุการใช้งานนานถึง 20 ปี ดูแลตลอดไปจากรุ่นสู่รุ่น เพราะ ทุกวินาทีใน บ้านเอสซีจีไฮม์ คือ ช่วงเวลาของการสร้างความสุข
เอสซีจี ไฮม์ (SCG HEIM) เรามี แบบบ้าน ให้คุณเลือกตามความต้องการตั้งแต่ โมเดิร์น มินิมอล สไตล์ญี่ปุ่น คลาสิก อเมริกันคอทเทจ ไปจนถึงสไตล์ทัสคานี ทั้งแบบบ้านชั้นเดียว บ้านสองชั้น ไปจนถึงบ้านสามชั้น ราคาเริ่มต้นเพียง 5 ล้านบาทขึ้นไป ด้วยประสบการณ์สร้างบ้านหลากหลาย รับประกันคุณภาพการก่อสร้างด้วย หลากหลายความประทับใจจากลูกค้าที่อยู่อาศัยจริง
ล้านบาทขึ้นไป ด้วยประสบการณ์สร้างบ้านหลากหลาย รับประกันคุณภาพการก่อสร้างด้วย หลากหลายความประทับใจจากลูกค้าที่อยู่อาศัยจริงหลากหลายความประทับใจจากลูกค้าที่อยู่อาศัยจริง
